Description
- Full Planning Permission Granted
- Easy access into the City Centre
- To Accommodate 4 Bedroom apartments and Retail Unit
- Planning Ref LA04/2021/1701/F permission granted 3rd June 2024
- NIW – There is available capacity at the Waste Water Treatment Works
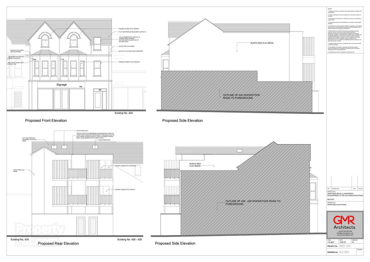
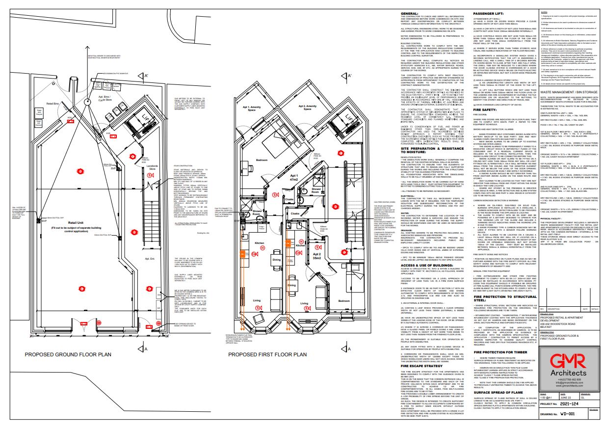
Full planning permission is in place for the demolition of 430 & 432 Woodstock
Road and the erection of a new 2 storey building to accommodate 1 retail unit,
2 one-bedroom apartments and 2 two-bedroom apartments with ancillary
accommodation, bin store and cycle parking
Building Control approval and NI Water connections have both been
secured, ensuring a smooth development process.
Price
Rates
VAT
Accommodation
Retail Unit – 920.31 Sq Ft
First Floor – Apartment  505.9 Sq Ft
First Floor – Apartment  376 Sq Ft
Second Floor – Apartment 376.73 Sq Ft
Contact
Contact: Stephen Deyermond
Tel: 028 9089 4065
Email: stephen.deyermond@tdkproperty.com
Contact: Sophie McConnell
Tel: 07824 038932
Email: student@tdkproperty.com
Location
The building is in a prime location on the Woodstock Road one of the cities main
arterial routes and up and coming neighbourhoods. It’s surrounded by other
retail units and residential homes.
Lease
EPC
Attachments

 
               
               
               
               
               
              